
VILLA DÜLL
Location: Goßmannsdorf, Germany
Client: Private
Status: Commission 2025, design ongoing
Program: Renovation of an existing historic building
without straight lines or planes
Use: Residential single-family house
Size: 95 m2 (building)
Site area: 95 m2
Gross floor area: 95,00 m2
Floor area: 180,00 m2
Materials: Massive stone, red brick, timber
construction
Team:
Architect Juhani Karanka / FINGERARCHITECTURE
Dipl.-Ing. Daniel Dahinten, structural engineering / TRAGRAUM
Ingenieure PartmbB
Dipl.-Ing. (FH) Hans Pezenka, surveying practice /
ALPHA-Vermessung
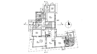
Villa D is a fascinating renovation project. The original house — or rather houses — were built up over time, starting in the early 19th century. The mix of materials, along with the layering and overlapping between the building and the surrounding plots (and vice versa), makes it a real challenge to design for.
The basement extends into the neighbouring property, while their living room actually projects over the plot line into Villa D. The house itself fills the entire plot, with the ground 100% built over.
Assessing the existing structure has been interesting too. Under today’s laws and regulations, this house simply wouldn’t be allowed to stand. As a result, any major changes to the complex puzzle of beams and floorboards have to be approached very carefully — otherwise the whole thing could come down like a house of cards.

LE CABANON
Location: Heidingsfeld, Würzburg, Germany
Client: Private
Status: Commission, design, completed 2025
Program: Renovation of an existing building with an
apartment and garage from 1963-1964
Use: One-room apartment with a new kitchen and renewed
bathroom
Size: 37 m2 (building) + 37 m2 (garage)
Site area: 2000 m2
Gross floor area: 36,79 m2
Floor area: 28,47 m2
Materials: Terazzo, linoleum, ceramic tiles,
wood
Design: Juhani Karanka / FINGERARCHITECTURE
LE CABANON is a delicate renovation project aimed at upgrading
an existing building from 1963-1964 to modern standards of
living. The original one-room apartment is above a garage, and
has still most of the 60's materials and details intact. The
renovation will include adding a new kichen, renewing the
existing bathroom and interior surfaces while keeping as much
as possible of the original materials and details in place.
This approach is important, as the client has dementia, and his
memories are dependable on these objects. Interestingly enough,
we can save and reuse most of the existing, and only renew the
basic technical installations and some of the surfaces that
simplz have come to the end of their lifecycle.
LE CABANON is inspired by a small, minimalist cabin designed by
Le Corbusier in 1951. Located in Roquebrune-Cap-Martin on the
French Riviera, it served as Le Corbusier's personal retreat
and is considered to be a forerunner to the "tiny house"
movement.

AINO
Location: Helsinki, Finland
Client: SAFA - Finnish Association of Architects
Status: Concept and competition proposal 2024
Program: Ideas competition for a new museum of architecture
and design
Use: Museum
Size: 10 000 m2
Site area: 10 000 m2
Gross floor area: 10 000 m2
Floor area: 10 000 m2
Materials: Timber construction with ceramic
façades
Team: Juhani Karanka / FINGERARCHITECTURE + Tobias Hensel +
Martin Kuntz + Daniel Dahinten + Yvonne Beck
AINO - our full-timber building entry to the international
architecture competition for Finland’s New Museum of
Architecture and Design to Helsinki. Out of 624 proposals, we
made it high up to the Upper Middle Category placed at 127 with
our cheeky Bird Plan and Egg Bar. The Jury especially
appreciated our “City concept and architecture with
character”. Congratulations to the winning entry
“Kumma” by JKMM Architects. Well done!
Thank you for our little team; Yvonne Beck, Daniel Dahinten,
Tobias Hensel and Martin Kuntz, for playing the game of form
follows fun! Let’s pop open a bottle of champagne to celebrate
this nice 9/11 event!

VILLA S
Location: Würzburg, Germany
Client: Private
Status: Commission & study 2023, approved
2024
Program: Feasibility study for new housing on an existing
urban plot
Use: Single-family or two-family house
Size: 250 m2 (building) + 36 m2 (underground
garage)
Site area: 1200 m2
Gross floor area: 250 m2
Floor area: 210 m2
Materials: Recycled red brick in various sizes
Design: Juhani Karanka / FINGERARCHITECTURE
VILLA S is a feasibility study for condensing & compressing new housing to an existing urban plot in Würzburg. Playing around with an idea of upcycling used bricks produced an interesting concept for sustainable construction and expressive façades. The study continues with alternative materials and 3D-modelling of the ground and possible future building forms.

VILLA RIEDMILLER
Location: Würzburg, Germany
Clients: Private & PolarLifeHaus
Status: Commission 2021, building permission 2021, under
construction 2022-2023, completed 2023
Program: Single-family house
Use: 4 rooms + kitchen + sauna
Size: 247 m2 (building) + 36 m2 (carport) + 43 m2
(Kleinwohnhaus)
Site area: 987 m2
Gross floor area: 247 m2
Floor area: m2
Materials: Wood + concrete
Architect: Juhani Karanka SAFA / FINGERARCHITECTURE
Team: In partnership with Johannes Arndt / baubüro Arndt2
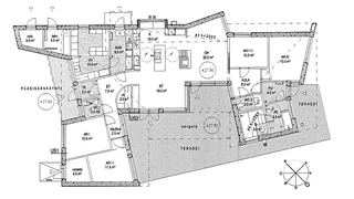
Villa Riedmiller is located on a steep hillside facing a beautiful panorama of the valley below. A tiny post-war house from 1959 is still standing on the plot and it will preserved as part of the site history and culture. Now the descendants of the original family decided to have a single-family house designed in Nordic Style and to be built out of Finnish wood. The new Villa Riedmiller follows the frontline of the original Kleinwohnhaus and the ground floor is planned on the same level in respect to the silent knowledge of earlier builder generations. The new building will be constructed of massive wood from Finland, and the roof will covered with 157 m2 of green in order to compensate for the ground area lost by construction.

MOTEL ONE
Type: Invited Competition for a new facade
Client: Motel One
Site: Downtown Würzburg
Size: Facades towards the public spaces in front of the
Würzburg Dom
Location: Würzburg, Germany
Status: Competition 2021, completed 2023
Team: Geisel Architekten, Studio Karanka, Matthias Braun
& Stefan Sauer (rendering)
Our team won the invited competition for the facade for the new Motel One hotel. The facades were done accordingly and the project received the precious Antonio Petrini Prize for Architecture from the City of Würzburg in 2023.

VILLA LUSI
Type: Lakeside vacation villa
Client: Eila & Mika Salvisto
Site: Lakeside plot 11 000 m2 (land 8670 m2, water 2330
m2)
Size: Villa 255 m2 + Garage 39 m2 + Lakeside sauna 56
m2
Location: Hattula, Finland
Status: Commission 2020, building permission 2021, under
construction 2021-2023
Architect: Juhani Karanka / FIN-GER Architecture
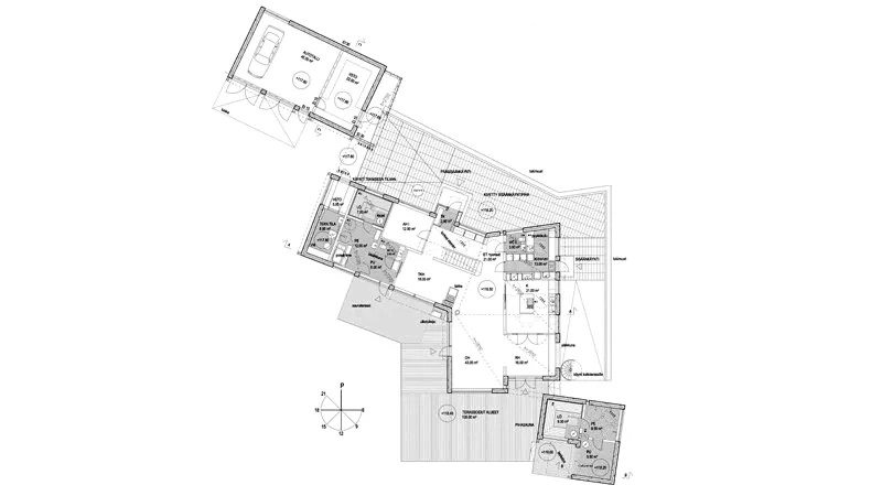
Villa Lusi is located by Lake Vanajavesi, Finland. The family purchased an old settlement building that used to function as a summer holiday camp for girls. Over time they have renewed and renovated with love and care the 1960s building as their lakeside vacation villa with a sauna right by the water. Now the owners wished for further renovations inside the main building, extensive outdoor terraces and a new garage. All the buildings are made out of wood, and most of the renovation and construction work is done by the family themselves.

VILLA LEONARD
Type: Additions to an existing 1960s single-family
house
Client: Private
Site: Hillside plot 1078 m2
Size: House 275 m2 + Modules 48 m2 + Garage 50
m2
Location: Würzburg, Germany
Status: Comission 2020, building permission 2020, completed
2023
Architect: Juhani Karanka SAFA / FINGERARCHITECTURE
Team: TRAGRAUM, baubüro Arndt2, & PolarLifeHaus
Villa Leonard is a co-created architecture project to design new additions (Modules) to an existing 1960s single-family house. The basic concept is to imagine the House as a Mothership to which all the new Modules dock in various ways. The challenges are multitude: How to design in various microcontexts using massive pre-cut wood, and at the same time take into account the balance between old and new parts that form the new entity without loosing the beauty of the original House. The Modules include Papillon (Butterfly) as the childrens playroom, Diner with an all-around window & skylight, Bibliothek (Library) with a 180° view to the garden and Gartenhaus (Nest) as a creative space for writing. The Garage is designed as a sidekick to the House and Modules: Out of wood, low in scale and all façades in green colour.

SAUNA KOLO
Type: Experimental prototype sauna
Client: FIN-GER
Size: 1,54 m2
Location: On an apartment house balcony, Würzburg,
Germany
Status: Concept 2019, Design 2020, Prototype 2021,
Completed 2023
Team: Juhani Karanka / FIN-GER Architecture, B & U
Inc., PolarLifeHaus (wood material)
KOLO (Hole in Finnish) is an experimental prototype for a Hell Hot Balcony Sauna for two Saunanauts. This Tiny Sauna is made out of wood from Finland and transported to Germany as a space filler at the back of transport truck carrying a bigger pre-fabricated log house. The door, windows, benches, and details are selfmade on site to give individual character to the final look. The stove is electric (230V), and it can be plug-and-played to a standard electric outlet. The prototype is a hybrid design combining high-tech, ready-made and DIY.

VERTIGO
Type: Competition for Sara Hildén Art Museum
Client: SAFA Open International Architecture
competition
Site: Finlayson Factory Area
Size: City of Tampere, Sara Hildén Foundation
Location: Tampere, Finland
Status: Competition 2020
Team: Juhani Karanka / FIN-GER Architecture & Students
of Architecture (FHWS)
472 entries to this open international competition. We did not win. The prize winning entries were interesting, but unfortunately the new museum will never be build. They cancelled the whole project due to landuse problems.

SCHEISS EGAL
Type: Competition for new students housing
Client: SAFA Open Architecture competition
Site: Kaleva city district
Size: Student Housing at Vanha Domus
Location: Tampere, Finland
Status: Competition 2020
Team: Juhani Karanka / FIN-GER Architecture & Students
of Architecture (FHWS)
78 entries to this open competition. We did not win. But it was fun to design together with real students a student housing complex made out of reused rusty shipping containers. Well, at least we won the public online vote!

MÜHLENHOF
Type: Comission for new housing
Client: Stiftung Helga Schott c/o Juliusspital Stiftung
Würzburg
Size: 6 apartments
Location: Würzburg, Germany
Status: Comission 2016, building permission approved
2021
Team: Studio Karanka & Matthias Braun (FIN-GER
Architecture)
The Mühlenhof project is a design with complexity and
contradiction. It is multilevelled housing inspired by the
medieval buildings and their varied architectural styles, and
totally modern apartments with open floor spaces allowing the
users to decide on the usage of their own spaces. The
apartments are on three levels, with the studio/shop/office on
the ground floor, living, cooking, dining on the first floor
and sleeping on the top floor. The individual apartments are
housed behind two different styled white metal facades thus
offering a play between form and function, views and windows as
well as breaking up the logic of "reading" what's behind the
face of the building.
Another level of design is related to the urban context. A
brand new passage connection is opened throught the small
inside courtyard between the frontside main street and a
pictoresque backalley. This complex mix between public,
semi-public, semi-private and private places is continued in
front of all the entrances to the individual apartments as a
stoep, where the inhabitants can place thier own green plants,
benches, etc.

LOK - BAHNHOF ROTTENDORF
Type: Collaboration project with Jäcklein
Architekten
Client: Town of Rottendorf
Size: Old railway station + new multipurpose
hall
Location: Rottendorf, Germany
Status: Competition 2015, design 2019, building permission
approved 2021, completed 2023
Team: Jäcklein Architekten, Juhani Karanka / FIN-GER
Architecture & Matthias Braun
Town of Rottendorf arranged an architectural competition for the renewal of their railway station in 2015. After winning the competition, Jäcklein Architekten was comissioned to do the architectural designs for the renovation of the existing station and for a new multipurpose hall. The modern and minimalistic extension presents an exposed concrete facade imprinted with the image of the orginal Rottendorf locomotive towards the tracks. This composition between old and new will give identity to the station and town which is highly visible to the train travellers on the main line between Frankfurt and München.

ECHTER QUARTIER
Type: Invited competition
Client: Juliusspital Stiftung Würzburg
Size: 8000 m2
Location: Würzburg, Germany
Status: Idea 2019
Architects: Juhani Karanka / FINGERARCHITECTURE in
partnership with Matthias Braun & Norbert Geisel
This invited architectural competiton searched for a new building design housing medical services, offices and residential apartments to the city district of Hubland, Würzburg. Our proposal was based on contextual structuralism, where the medical services were located in a cross-shaped white glass building (Remedium), offices in a local muschelkalk-stone terraced building (Weinberg) and housing in wooden buildings (Holzvilette). The structured order of spaces provided plenty of flexibility for changes in user preferences while the references to local materials and landscapes of surrounding vineyards bound the new buildings to the Würzburgian genius loci.

SAUNA S1
Type: Experimental DIY-sauna
Client: FIN-GER GbR
Site: Bürgerbräu Old Brewery
Size: Sauna 1,5 m2 + outdoor showering area 0,9
m2
Location: Würzburg, Germany
Status: Concept 2017, design 2017, built 2017
Team: Juhani Karanka / FIN-GER Architecture, Matthias Braun
& Kasimir Karanka
Sauna S1 is an experimental Tiny Sauna for two persons designed and built out of EUR-palettes (1200 x 800 mm) at Bürgerbräu Old Brewery in Würzburg. Directly next to the site is a small pond with fishes, and during the summertime a lot of mosquitos to enhance the Finnish summer sauna atmosphere.

LUX
Location: Pirkkala, Finland
Client: Kaija and Jorma Järvelä
Status: Commission 2010, building permission 2011,
completed 2013
Program: Single-family house
Use: 4 rooms + kitchen + sauna + garage +
storage
Size: 235 m2 (building) + 30 m2 (garage &
storage)
Site area: 820 m2
Gross floor area: 235 m2 + 30 m2
Floor area: 186 m2
Materials: Lightweight concrete ingot (whitewashed) + Wood
(painted white)
Architects: Juhani Karanka & Titta Tamminen
(ArkkitehtuuriAteljee)
LUX is a single-family house on an artificial landfill by Lake Pyhäjärvi. The name LUX was chosen as the Latin word for "light" and because it was suggestive of "luxury". The dreams and wishes of the clients, the inspiration of the building site on the shores of Lake Pyhäjärvi and the modern architectural expression generate the aims for this projects.

FOTONI
Location: Tampere, Finland
Client: Merja Jylhä-Pärssinen & Lasse
Pärssinen
Status: Commission 2010, building permission 2010,
completed 2012
Program: Single-family house designed and built to the
Housing Fair 2012 in Tampere
Use: 4 rooms + kitchen + sauna + garage +
storage
Size: 150 m2 (building) + 30 m2 (garage +
storage)
Site area: 539 m2
Gross floor area: 150 m2
Floor area: 130 m2
Materials: Lightweight concrete ingot (whitewashed) + Wood
(painted white)
Architects: Juhani Karanka & Titta Tamminen
(ArkkitehtuuriAteljee)
Modern home inspired by the archetype of a house and light (light particles = photon)

MÄNTYLÄ HOUSE
Location: Tampere, Finland
Client: Tuukka Mäntylä
Status: Commission 2009, building permission 2009,
completed 2011
Program: Single-family house
Use: 5 rooms + kitchen + sauna + garage +
storage
Size: 239 m2 (building) + 30 m2 (garage +
storage)
Site area: 741 m2
Gross floor area: 239 m2
Floor area: 182 m2
Materials: Lightweight concrete ingot (whitewashed) + Wood
(painted white)
Architects: Juhani Karanka & Titta Tamminen
(ArkkitehtuuriAteljee)
Single-family house on a long and narrow suburban site for a professional ice hockey player and his family. Modern house inspired by Italian design, small medieval courtyards and high towers

DYFÄT
Location: Leppälahti, Finland
Client: Otto Chrons
Type: Summer residence
Program: 6 rooms + kitchen + lakeside sauna
Site area: 6100 m2
Gross floor area: 299 m2
Floor area: 129 m2
Materials: Massive wood (exterior painted black, interior
painted white)
Status: Commission 2007, building permission 2008, completed
2011
Architects: Juhani Karanka & Titta Tamminen
(ArkkitehtuuriAteljee)
DYFÄT is summer residence with a guest house, lakeside sauna and traditional outdoor toilet - all with great views to the surrounding Nordic nature and Lake Näsijärvi. The buildings were all made out of massive Finnish wood and painted black on the outside, and white on the inside.

ARCUS
Location: Lempäälä, Finland
Client: Ulla Nieminen & Sami Kananoja
Status: Commission 2006, building permission 2007, completed
2011
Program: Single-family house
Use: 6 rooms + kitchen + sauna + garage + storage
Size: 250 m2 (building) + 83 m2 (garage + storage)
Site area: 4500 m2
Gross floor area: 208 m2
Floor area: 173,5 m2
Materials: Timber construction with curving walls
Architects: Juhani Karanka & Titta Tamminen
(ArkkitehtuuriAteljee)
Single-family house in the countryside with curving walls made out of Finnish wood.
ARCUS - The Serpent! How can a modern building take into account its surroundings?
Following the flowing line of modern architecture, Arcus is build out of wood on site in a flexible way that relates its form and functions to the surrounding environment. The principles are simple: buildings height, width, materials, colours and details are done in a low-key expression through which the newcomer is "glued" to the nature and culture that already exists on the site. Only the buildings overall flowing form is something new that expresses the independence and age of Arcus.

MEGARON
Location: Imaginary place in Lapland, Finland
Client: Marimekko Oy
Status: Competition 2006
Program: Open Ideas Competition for Marimekko
Use: Off-the-grid Tiny House
Size: 88 m2
Site area: - m2
Gross floor area: 88 m2
Floor area: 62 m2
Materials: Timber construction with Marimekko printed
façades
Architects: Juhani Karanka & Titta Tamminen
(ArkkitehtuuriAteljee)
megaron - what you see is what you get = wysiwyg-house
Proposal for an off-the-grid tiny house with façades inspired by Marimekko fabric designs. We did not win.

SORJONEN HOUSE
Location: Pirkkala, Finland
Client: Elina & Kari Sorjonen
Status: Commission 2005, building permission 2006, completed
2008
Program: Single-family house
Use: 8 rooms + kitchen + sauna + garage + storage
Size: 416 m2 (building) + 82 m2 (garage + storage)
Site area: 8093 m2
Gross floor area: 498 m2
Floor area: 309 m2
Materials: Lightweight concrete ingot (whitewashed) + Wood
(painted white)
Architects: Juhani Karanka & Titta Tamminen
(ArkkitehtuuriAteljee)
SORJONEN HOUSE was designed for a family of four on a large forest plot. The family wished for a "small Finnish house", normally meaning something in the range of 120-200 m2. During the design process the program evolved to an ever growing project eventually becoming a "small" house of 500 m2. The overall concept and individual design solutions were inspired by the site and by the Italian landscapes and towns in Toscana. The floor plan design was inspired by icehockey goalkeeper's butterfly -style.

NOKI
Location: Helsinki, Finland
Client: Municipality Finance (Kuntarahoitus Oyj)
Status: Commission 2005, building permission 2005,
completed 2006
Type: Renovation and extension to 1960s single-family
house
Program: renovation of 1960s house + entrance + den with
fireplace + bathroom + sauna + carport + storage
Materials: Timber construction
Site area: 1487 m2
Gross floor area: 372 m2
Floor area: sauna 25 m2, total 177
m2
Architects: Juhani Karanka & Titta Tamminen
(ArkkitehtuuriAteljee)
Sauna Noki is a small extension to an existing 60s single-family house in Helsinki inspired by railroad wagons close by. The lounge, bathroom and sauna were built as a wooden frame building with a pitch black exterior, thus the name Noki (Finnish for soot). This tiny sauna building turned its back towards the street making it a positive barrier against noise and opened up views to the lush green garden improving the quality of privacy for the family.

VERSTA
Location: Hyvinkää, Finland
Client: Inkeri & Raimo Julkunen
Status: Commission 2003, building permission 2004,
completed 2006, published Arkkitehtilehti 5/2008
Typology: Residential / Single-family house
Program: 3 rooms + kitchen + atelier + gallery +
sauna
Size: 177 m2
Site area: 1005 m2
Gross floor area: 177 m2
Floor area: 143 m2 + ground floor cellar space 75,5
m2
Materials: Lightweight concrete ingot (whitewashed) + Wood
(painted white)
Architects: Juhani Karanka & Titta Tamminen
(ArkkitehtuuriAteljee)
VERSTA is a small house for two seniors, who wished to work in peace at the opposite ends of the house. The curving walls produced an interesting acoustic space via which the couple could whisper to each other between the studio and office. The outdoor terrace area, with a fabulous apple orchard view, functioned as an extra “room” that was accessible from both sides of the house. Modern house inspired by actress Mary Astor's golf swing.
VERSTA - fore! Can something charming come out of exploiting the basic elements of architecture?
Following the finest tradition in modern European private house design and in the continuum of Alvar Aalto’s dwellings, the Versta is a home built for an elderly couple. The 143 m² single-storey house is sited on a gently sloping apple tree orchard in the suburb of the City of Hyvinkää, a town nestling on the edge of the Helsinki Metropolitan Area.
The controversial wishes of the clients was to have a “tiny house” with airy rooms and with respect for their personal privacy while, at the same time, opening onto unrestricted views and direct access to the lush garden. The outcome of the design process was a house with four-cornered L-shaped floor plan situated in the northeastern corner of the site, thus leaving the original garden as intact as possible and making the best use of the natural daylight. The control over the views was achieved with the framing of the building itself - what you see is what you get!
From the very first sketch, our office's emphasis was on overall form instead of superfine details and exquisite materials. Above all, the form functions as a livable home with free-flowing interior spaces. There are surprising connections between living spaces and a much used shortcut across the outdoor terrace from the atelier to the living room and back. All these are enchanting charms in a building made out of ordinary concrete blocks and prefabricated slabs.
Design motto: If you know exactly what you are going to do, what is the point of doing it?
This home and studio was published in Arkkitehtilehti 5/2008 and Houses in Finland 2011.

TAIPALE HOUSE
Location: Vantaa, Finland
Client: Kati Stoltz & Pekka Taipale
Status: Commission 2002, building permission 2002,
completed 2008
Program: Single-family house
Use: 6 rooms + kitchen + sauna + carport
Size: 223 m2 (building) + 40 m2 (carport)
Site area: 1152 m2
Gross floor area: 223 m2
Floor area: 186 m2
Materials: Lightweight concrete ingot (whitewashed) + Wood
(painted white)
Architects: Juhani Karanka & Titta Tamminen
(ArkkitehtuuriAteljee)
TAIPALE HOUSE is a small house for a family of four designed with unique rooms, views, connections and outdoor areas. This house rests totally on steel columns that penetrate the soft ground all the way to the bedrock some 30 meters below. The complex floor plan offered a true challenge for figuring out the shape of the roof. Now the solution looks easy, but at the time it was really a puzzle to solve. Modern house inspired by the forms of a Jedi troop transporter.

ARVAJA HOUSE
Location: Tampere, Finland
Client: Minna & Mika Arvaja
Status: Commission 2000, building permission 2001,
completed 2007
Program: Single-family house
Use: 8 rooms + kitchen + sauna + loggia
Size: 256 m2 (building) + 39 m2 (carport &
storage)
Site area: 1309 m2
Gross floor area: 256 m2
Floor area: 191 m2
Materials: Lightweight concrete ingot (whitewashed) + Wood
(painted in Oregon Pine colour)
Architects: Juhani Karanka & Titta Tamminen
(ArkkitehtuuriAteljee)
ARVAJA HOUSE was designed for five persons and it was built by the family themselves. The inspiration for the floor plan came from the husband’s profession: ice hockey. Mika’s ice skates were lying on the drafting table during one ideas session, and suddenly everything just slid into the right place. We even placed a little round window to the tip of the shoe. This was the first time that the design work was conducted over the Internet, while the family was away in Germany for a year due to ice hockey. Upon their return, the family DIY the whole building. Impressive achievement! Classic urban villa inspired by the forms of Bauer iceskates.

PENTTI HOUSE
Location: Teisko, Finland
Client: Private
Status: Commission 2000, building permission 2000,
completed 2003
Program: Vacation house
Use: 4 rooms + kitchen + sauna building
Size: 82 m2 (building) + 20 m2 (storage)
Site area: 7770 m2
Gross floor area: 82 m2
Floor area: 71,5 m2
Materials: Massive wood (exterior and interior in natural
wood)
Design: Juhani Karanka & Titta Tamminen /
ArkkitehtuuriAteljee Karanka & Tamminen
PENTTI HOUSE consists of the main building and a separate sauna building by the lake. The family wished for an unique design made out of massive wood, and this idea hopped off the drawing table. The main building pivots around a skylight and a central fireplace with lakeside views, while the tiny sauna building has its own genre with straight, zig-zag and curving forms. The hand-drawn designs were interpreted to CAD & CAM by Honkatalot, which produced all the pre-cut massive wood parts and constructed the buildings according to the wishes of the family.

SALKOLAHTI HOUSE
Location: Kangasala, Finland
Client: Pia & Riku Salkolahti
Status: Commission 1999, building permission 2000,
completed 2004, published 2004
Program: Single-family house
Use: 6 rooms + kitchen + sauna
Size: 217 m2 (building) + 41 m2 (garage &
storage)
Site area: 990 m2
Gross floor area: 217 m2
Floor area: 162 m2
Materials: Lightweight concrete ingot (whitewashed) + Wood
(painted white / Oregon Pine colour)
Architects: Juhani Karanka & Titta Tamminen
(ArkkitehtuuriAteljee)
Prize: Best Building Project of the Year, Municipality of
Kangasala, Finland. 2004.
SALKOLAHTI HOUSE was designed for four persons, and built by the family themselves. One of the architectural ideas was to play around with the "classic" archetype of a house, by kicking it in the corner in order to distort the conveyed image. It worked out surprisingly well. Only one corner was designed in an angle of 90°, but during the construction work it turned out to be an angle of 89°, which - luckily - made the family very happy. On this worksite, the best bricklayer ever, was the baker, who normally baked cakes in the village. Modern house inspired by the Stealth fighter.
In 2004 SALKOLAHTI HOUSE was awarded the Best Building Prize by the municipality.

VINOKAS
Location: Lempäälä, Finland
Client: Artist Marika Björklund
Status: Design 1994, building permission 1994, completed
1995
Program: Wilderness Atelier
Use: 1 room + 1 atelier
Size: 16 m2
Site area: 1000 m2
Gross floor area: 16 m2
Floor area: 11 m2
Materials: Wood (natural) + selfmade clay blocks
(reinforced with hay)
Design: Juhani Karanka & Titta Tamminen
Special Contribution: Ceramic Artist Marika Björklund
This heart-shaped Wilderness Atelier was designed and built as an addition to an existing 18th century log cabin deep in the forest. Part of the original wood wall was rotten, so we decided to use this as the connection point between the old and new. The Atelier roof was constructed on three massive wood columns with a triangular skylight and long eaves to protect the free flowing walls. The on-site clay and hay was used as building materials for blocks that made up the walls, interior and exterior surfaces. And all the needed drawings for this project, including the building permission, was hand-drawn in ink on one single sheet of paper! Oh, those were the days!

HERTELL SUMMER RESIDENCE
Location: Hämeenkyrö, Finland
Client: Private
Status: Design 1993, building permission 1993, completed
1994
Program: Summer residence
Use: 4 rooms + kitchen + lakeside sauna
Size: 80 m2 (building) + 20 m2 (sauna)
Site area: 1000 m2
Gross floor area: 120 m2
Floor area: 65 m2
Materials: Wood (painted) + metal (copper)
Design: Juhani Karanka | Studio Karanka
Hertell Summer Residence. Ink drawing on plastic. This axonometric drawing in scale 1:50 was part of the building permission plans for additions to an existing summer house in Finland. The family dreamed of a tower and a fishtail-shaped bedroom with a bathroom to upgrade their old cabin by the lake. The additions and the renovation of the original cabin was built mainly out of local wood by a team of carpenters, smiths and copper roof makers. The romantic project turned out to be a lot of fun for all, and the family still uses the place as their summer home.

KAUNIS VEERA
Location: Savo Finland
Client: SAFA Open Architecture competition
Status: Competition 1988, published 1989
Program: Summer home
Use: 3 rooms + kitchen + sauna
Size: 80 m2 (building)
Site area: imaginary
Gross floor area: 80 m2
Floor area: 65 m2
Materials: Wood (natural)
Design: Juhani Karanka
Publication: Arkkitehtuurikilpailuliite, SAFA, Helsinki.
1988.
Competition entry for a Savonian summer cottage (Savolainen mökki) architecture competition. The design is based on the famous song about the Kaunis Veera - Beautiful Veera combined with a wood cottage shipwrecked on the rocky lakeshore. All drawings were done with pencil and watercolours. Didn‘t win or get a prize, but made it in to the competition publication.
Few years later, one of the competition jury members designed a poor copy of Kaunis Veera, which was even published in the Finnish Architecture Magazine Arkkitehtilehti. Ship shape!

FLEXIBO
Location: Stockholm, Sweden
Client: Nordic architecture student competition
Status: "Palladio i Norden" Competition 1985, honorary
mention 1985, published 1985
Program: Single-family house
Use: 4 rooms + kitchen + sauna
Size: 120 m2 (building) + 20 m2 (storage)
Site area: imaginary
Gross floor area: 120 m2
Floor area: 110 m2
Materials: Wood (natural) + stone (insulated) +
earth
Design: Juhani Karanka & Ahto Ollikainen
Publication: Ekelund, Christer. Palladio idag, Liber
Förlag, Stockholm. 1985.
This tiny model (1:200) of Flexibo was submitted to the Palladio i Norden -competition in 1985. The competition brief asked for an affordable detached house for an unspecified site, suitable for mass production and/or prefabrication, inspired in one way or the other by the famous villas of Italian 16th century architect Andrea Palladio. Flexibo received a honorary mention for innovative ecological design and modern interpretation of Palladio’s architectural language. The concept for the required villa was turned upside down, embedding the small house underground and integrating it as a part of the surrounding landscape. It is interesting to reflect, what has happened since 1985.

WALL HOUSE
Location: Kangasala, Finland
Client: Tampere University of Technology & Kangasala
Vocational School
Status: Competition First Prize 1985, building permission
1986, completed 1987, published 1987
Program: Single-family house
Use: 4 rooms + kitchen + sauna
Size: 142 m2 (building) + 30 m2 (storage)
Site area: 921 m2
Gross floor area: 142 m2
Floor area: 115 m2
Materials: Wood (natural gray / painted light gray) + red
brick (whitewashed)
Design: Juhani Karanka
Special Contributions: Sculptor Mauno Kivioja, Artist Lauri
Ahlgrén, Student of Architecture Matti Mastosalo
Publication: 3/1987 Tiili-magazine, Art-Print, Helsinki.
1987.
WALL HOUSE is based upon the winning entry to an architectural competition arranged at the Department of Architecture at the Tampere University of Technology. This experimental house was built out of wood and bricks in cooperation with the 16-year-old students of Kangasala Vocational School. The slowly curving massive brick wall was made by following two simple rules: “Please shuffle the bricks 20 mm in and out of the main line and avoid any regular brickwork patterns.”
For a 22-year-old student of architecture, it was an interesting experience to follow your own design evolve into a built building. When returning back to the academic world, everything seemed somehow out of touch with the outside world and real life. The positive experiences that everything was possible at the construction site were quickly buried underneath thousands of arguments against doing anything except a boring box.
